Studio
- Home
- Studio
Studio
Our studio apartments at KSL Lakeview are thoughtfully designed to maximize space and functionality. Perfect for individuals or couples, these residences offer a seamless blend of comfort and modern design. The open-concept layout ensures an airy, spacious feel, while high-quality finishes add a touch of sophistication to your everyday living.
Type A
Welcome to your thoughtfully designed Type A residence, where every square foot is optimized for comfort and functionality. Spanning 501 square feet, this layout is perfect for individuals or couples who appreciate a compact yet stylish living space.
- Open Living and Dining Area
- Modern Kitchen
- Spacious Bedroom
- Private Balcony
- Well-Appointed Bathroom
- A/C Ledge
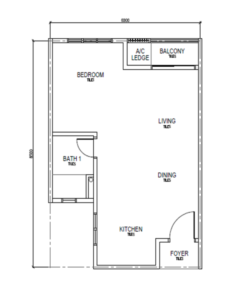
Type B1
Experience a blend of style and functionality with our Type B1 residence. Spanning 649 square feet, this well-appointed layout is designed for those who appreciate a spacious home with thoughtful details. Perfect for singles, couples, or small families, Type B1 offers a balance of comfort, privacy, and practicality.
- Master Bedroom Retreat
- Modern Kitchen
- Private Balcony
- Two Well-Appointed Bathroom
- Practical Yard and A/C Ledge
- Private Foyer
- Versatile Utility Room
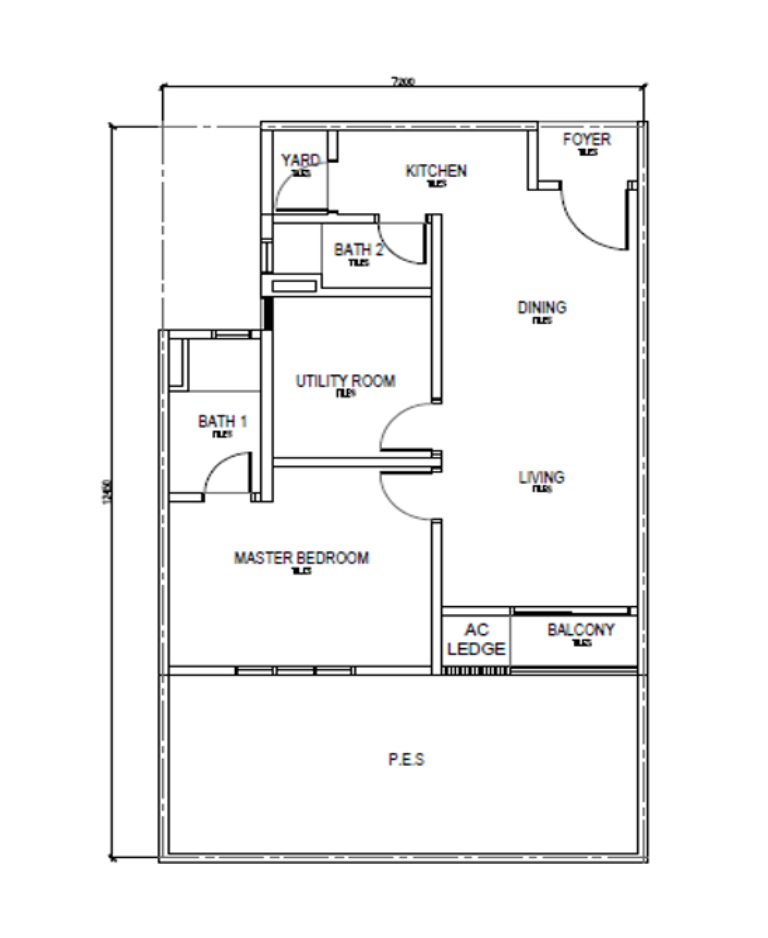
Type B3
Embrace the luxury of added space with our Type B3 Extended residence. Spanning 649 square feet of interior space plus an additional 233 square feet for outdoor and private use, this layout combines the comforts of indoor living with the beauty of outdoor relaxation. Whether you’re hosting guests or enjoying a quiet evening at home, this versatile and expansive design caters to all your needs.
- Master Bedroom Sanctuary
- Modern Kitchen
- Two Modern Bathroom
- Practical Yard and A/C Ledge
- Private Foyer
- Versatile Utility Room
- Balcony & P.E.S. (Private Enclosed Space)


